Raum für deine Ideen
Dein Grundstück in allen Details
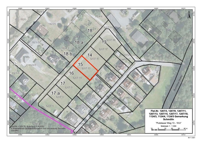
Adresse
Putzkauer Weg 18a 01877 Schmölln-Putzkau
Größe
878 qm
Kaufpreis
124.676 €
Bauträger
Bauträgerfreies Grundstück
Erschließungsart
erschlossen
Ihr direkter Draht zu uns
Wir sind für Sie da
Schirmergut Immobilien GmbH
Kirchplatz 4 02625 Bautzen
Standortbeschreibung
Erfahre mehr über dein Neues Umfeld
Adress-Info
Das Baugrundstück befindet sich in einem neu erschlossenen Wohngebiet. Sie erreichen das Grundstück über eine kleine Anwohnerstraße.
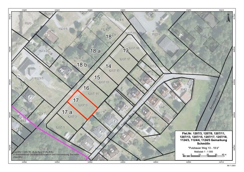
Grundstücksbeschreibung
Dein neues Zuhause
Ihr direkter Draht zu uns
Wir sind für Sie da
Schirmergut Immobilien GmbH
Kirchplatz 4 02625 Bautzen
Weitere Grundstücke vom Anbietenden
Lassen Sie sich inspirieren von neuen Perspektiven
Weitere Grundstücke im Umkreis
Lassen Sie sich inspirieren von neuen Perspektiven


























